PN公稱通徑
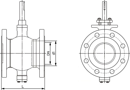
DN外形尺寸/mmd1LL1HH1162538102518173324510251867840501145790805062124629390657314572.5108105809016582.51231181001151949713813012513419497148145150164229114.5170170200206243121.5200201250260297148.5240237300316338169286282350372400200330337400420400200367372450470520260422432500516600300490498表中未列出的其他規格尺寸,請咨詢汗越閥門技術部!

保溫V型球閥結構圖

保溫V型球閥

如果你需訂購我廠保溫球閥系列產品,咨詢時煩請說明公稱壓力、公稱尺寸、閥體和內件材質、使用介質、工作溫度及驅動方式等,本產品端部連接方式有法蘭和對夾兩種。

上一條:保溫偏心半球閥

下一條:電動對夾式保溫球閥