Class公稱尺寸
NPS外形尺寸/mm公稱壓力
Class公稱尺寸
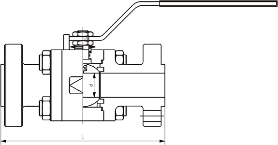
NPS外形尺寸/mmdLdL1500?132162500?13264?19229?192731252541253081 ?322791 ?323491 ?383051 ?38384249368242451表中未列出的其他規格尺寸,請咨詢汗越閥門技術部!

ASTM A182 F53球閥結構圖

F53球閥

我廠生產ASTM A182 GRADE F53浮動球閥、ASTM A182 GRADE F53固定球閥、ASTM A182 GRADE F53三通球閥、ASTM A182 GRADE F53四通球閥等。如果你需訂購不銹鋼球閥產品,咨詢時請注明規格型號,或告知結構類型、公稱壓力、公稱通徑、閥體和內件材料、工作介質和溫度、端部連接形式、驅動方式等。

上一條:ASTM A182 F51球閥

下一條:ASTM A182 F55球閥